27231 SW Vista Ridge LN Wilsonville, OR 97070
Print this Listing
Price:
$924,900
Beds:
5
Baths:
2.1
Ft²:
2631
MLS#:
424699092
Lot Size:
3,000 to 4,999 SqFt
Type:
Detachd
County:
Clackamas
Style:
2 Stories
Yr Built:
2025
Status:
Active
Levels:
2
Garage:
Attached
Nhood/Bldg:
FROG POND VISTA
Heat:
Forced Air - 95+%
Fireplace:
Gas
Roof:
Composition, Metal
Accessibility:
Garage on Main, Main Floor Bedroom w/Bath
View:
Park/Greenbelt, Trees/Woods
Elem:
Stafford
Middle:
Meridian Creek
High:
Wilsonville
Lot Desc:
Green Belt, Public Road
Area:
Tigard, Tualatin, Sherwood, Wilsonville
Exterior:
Covered Patio, Fenced, Gas Hookup, Patio, Porch, Public Road, Sprinkler, Yard
Courtesy of:
Stone Bridge Realty, Inc
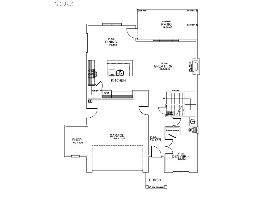
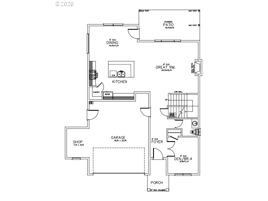
Remarks:
See a sales rep about our current rate buydown promo! This Farmhouse features 3 bedrooms up, with a den/4th bedroom on the main floor. Enjoy the spacious great room and gourmet kitchen with a large walk-in pantry and stainless-steel Whirlpool appliances. Enjoy the serenity the green tract behind this property has to offer on your huge covered rear patio. The primary suite features a soaking tub, full tile shower, dual vanities, and 2 large walk-in closets. Tour this plan today!

We’ll get back to you as soon as we’re able. But if you need us sooner, feel free to call Brian at 503-810-2219 with your questions.


Back to listings