- ADDRESS:
- 4613 SE 49TH AVE Portland, OR 97206
- VIDEOS:
- Print this Listing
- Price:
- $739,000
- Beds:
- 4
- Baths:
- 2.1
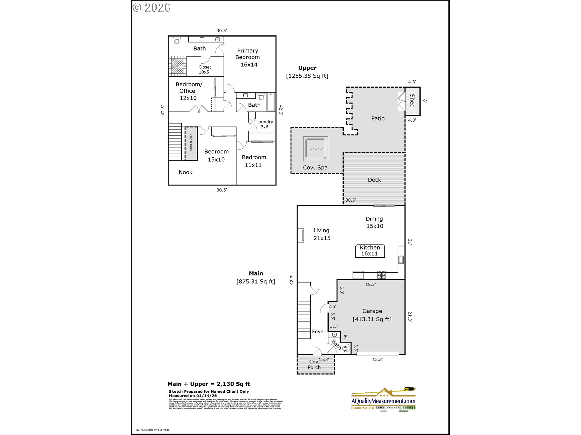
- Ft²:
- 2130
- Acres:
- 0.09
- MLS#:
- 539478390
- Lot Size:
- 3,000 to 4,999 SqFt
- Type:
- Detachd
- Zone:
- R5
- County:
- Multnomah
- Style:
- 2 Stories
- Yr Built:
- 2009
- Status:
- Active
- Levels:
- 2
- Garage:
- Attached
- Nhood/Bldg:
- WOODSTOCK
- Heat:
- Forced Air
- Fireplace:
- Gas
- Roof:
- Composition
- Elem:
- Woodstock
- Middle:
- Lane
- High:
- Cleveland
- Lot Desc:
- Level
- Area:
- Portland Southeast
- Exterior:
- Covered Patio, Deck, Fenced, Patio, Porch, Spa, Tool Shed, Yard
- Courtesy of:
- Think Real Estate
- Remarks:
- Newer 2009 Craftsman in the heart of Woodstock with modern systems and an easy, livable layout! Covered front porch opens to a great-room main level with hardwood floors, recessed lighting, and a gas fireplace. Open kitchen features granite counters, stainless appliances, built-in hutch, and an island with breakfast bar seating. Dining area slider to the deck for effortless indoor/outdoor entertaining, plus a convenient half bath. Upstairs: spacious primary suite with walk-in closet (built-ins), double vanity, and tiled walk-in shower, plus 3 additional bedrooms, including one with glass French doors, perfect for an office/den or private bedroom. Full hall bath + upstairs laundry. Fully fenced yard with Pistils-designed landscaping, deck + patio, newer covered hot tub, tool shed, and 1-car garage with workshop space. Minutes to Woodstock shops and restaurants! [Home Energy Score = 5. HES Report at https://rpt.greenbuildingregistry.com/hes/OR10243732]











































