- ADDRESS:
- 12820 SW GLACIER LILY CIR Tigard, OR 97223
- VIDEOS:
- Virtual Tour Print this Listing
- Price:
- $795,000
- Beds:
- 4
- Baths:
- 2.1
- Ft²:
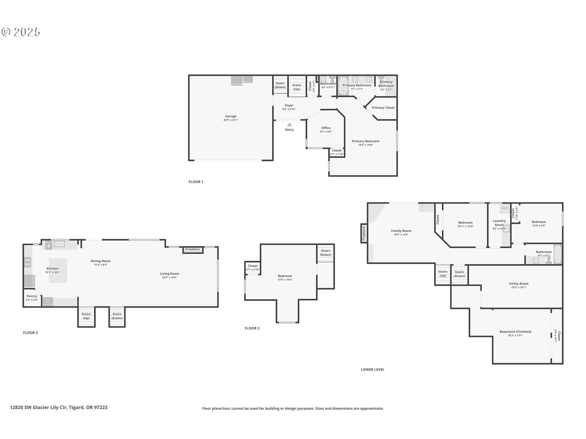
- 2715
- Acres:
- 0.13
- MLS#:
- 688037739
- Lot Size:
- 5,000 to 6,999 SqFt
- Type:
- Detachd
- County:
- Washington
- Style:
- 3 Stories
- Yr Built:
- 1984
- Status:
- Active
- Levels:
- 3
- Garage:
- Attached, Oversized
- Nhood/Bldg:
- SUMMER LAKE
- Heat:
- Forced Air
- Fireplace:
- Gas, Wood Burning
- Roof:
- Shake
- Accessibility:
- Garage on Main, Main Floor Bedroom w/Bath
- View:
- Lake, Seasonal, Territorial
- Elem:
- McKay
- Middle:
- Conestoga
- High:
- Southridge
- Lot Desc:
- Level
- Area:
- Tigard, Tualatin, Sherwood, Wilsonville
- Exterior:
- Covered Deck, Deck, Free-Standing Hot Tub, Gas Hookup, Porch, Yard
- Courtesy of:
- Reger Homes, LLC
- Remarks:
- Lakefront Living in Coveted Summerlake! Discover serenity and style in this expansive lakefront home, located in the tranquil and highly sought-after Summerlake community. Greeted by the showstopping open-concept main level, where soaring vaulted ceilings, gleaming hardwood floors, and a wall of windows bathe the space in natural light and frame breathtaking lake views. The main-level primary suite features vaulted ceilings, a generous walk-in closet, and an ensuite with two separate showers and a soaking tub. The gourmet kitchen is designed to impress with a spacious island, ample walk-in pantry, and open flow into the dining and living areas, leading to a deck overlooking the tranquil lake—perfect for both relaxed family living and effortless entertaining. French doors lead to a versatile main-level den, ideal for a home office or creative space. Downstairs, the daylight basement is bright and welcoming, offering a spacious family room with custom built-in bookcases, a custom bar for entertaining, and easy walk-out access to the lower deck and one of the home’s standout features: a completely level, expansive backyard. The finished flex space is perfect for a gym, media room, or extra storage. Upstairs, a versatile loft and additional bedroom provide excellent options for guests, a second office, or playroom. Enjoy year-round outdoor living—sip morning coffee on your private deck with peaceful lake views, take a soak in the hot tub, or explore the scenic trail bordering the property. Surrounded by natural beauty and set within a quiet, established neighborhood with low HOA dues, this home offers exceptional tranquility and convenience—just minutes to top-rated schools, parks, and Tigard’s best amenities. Don’t miss this rare opportunity to own a true lakefront masterpiece—where space, design, and premier location unite for the ultimate lifestyle.














































