- ADDRESS:
- 4520 CALAROGA DR West Linn, OR 97068
- VIDEOS:
- Print this Listing
- Price:
- $1,030,000
- Beds:
- 3
- Baths:
- 2.1
- Ft²:
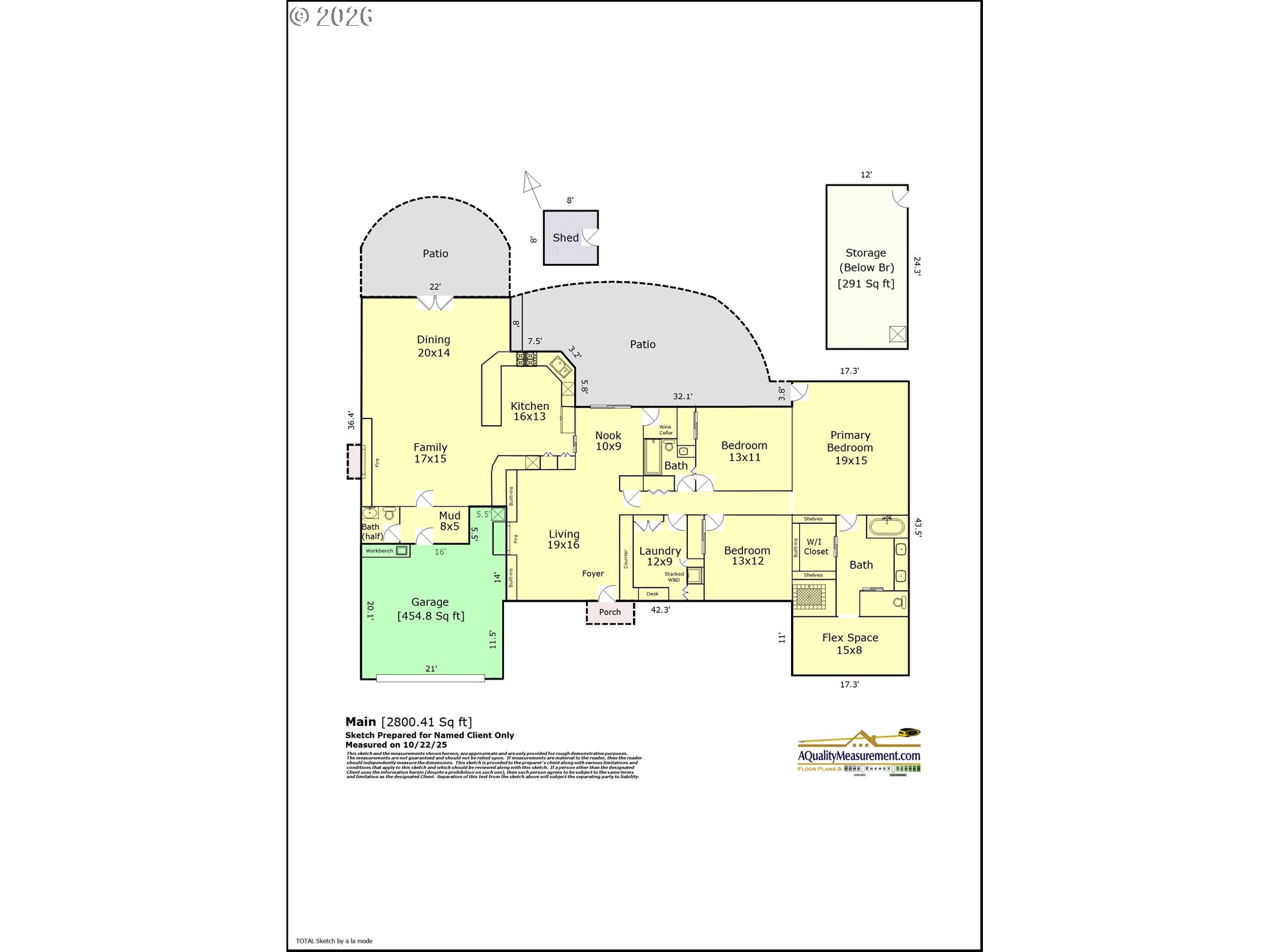
- 2800
- Acres:
- 1.11
- MLS#:
- 671348416
- Lot Size:
- 1 to 2.99 Acres
- Type:
- Detachd
- Zone:
- R-10
- County:
- Clackamas
- Style:
- 1 Story
- Yr Built:
- 1968
- Status:
- Active
- Levels:
- 1
- Garage:
- Attached
- Nhood/Bldg:
- Cedaroak
- Heat:
- Forced Air
- Fireplace:
- Gas, Wood Burning
- Roof:
- Composition
- View:
- Creek/Stream, Trees/Woods
- Elem:
- Cedaroak Park
- Middle:
- Rosemont Ridge
- High:
- West Linn
- Lot Desc:
- Private, Sloped, Trees, Wooded
- Area:
- Lake Oswego, West Linn
- Exterior:
- Built-in Barbecue, Raised Beds, RV Parking, RV/Boat Storage, Tool Shed, Yard
- Courtesy of:
- Cascade Hasson Sotheby's International Realty
- Remarks:
- This single-level ranch home in the desirable Robinwood neighborhood is a rare find. Set on a private one-acre lot surrounded by protected forested wetlands, it has a functional, cozy and inviting layout with 3 bedrooms, 2.5 baths, and a laundry with built in cabinets and a desk which can be used as an office. A chef’s kitchen features high-end stainless steel appliances, including three ovens! It opens to a spacious family room and dining area with vaulted ceilings and exposed beams, creating the perfect setting for everyday living, small gatherings or large parties. The generous primary suite is a true retreat, complete with an updated, spa-like bath and an additional flex space ideal for a nursery, art studio, or yoga space. Tons of storage below too! The backyard patio is perfect for a quiet afternoon of reading or bird and deer watching. The English garden in the front yard welcomes the friendly neighbors. Sweet, cozy, and full of charm, this home offers peaceful privacy while remaining part of a friendly, walkable neighborhood close to shopping, restaurants, trails, boat dock and parks. Short walk to Cedaroak Park Primary. This home is also in the Rosemont Ridge Middle and West Linn High School boundry.















































